Industry Figure | Berkeley | Back to Jeep Cherokee
Cherokee Front Bumper Light Mount
Under Construction
I designed, and C4x4Fab will build, a minimalist grill guard and light mount that perfectly suited my needs. Custom 4x4 Fabrication sells a good looking grill guard for their front winch bumper, but it's not made for lights as big as my Hella Rallye 4000 cornering beams.

I began the quest for a custom grill guard--it's really less of a grill guard and more of a light mount--by contacting Custom 4x4 Fabrication and speaking to owner Mike Houlett. His initial reaction to my design idea was roughly, "That's going to look kind of funny," but he was willing to build it. In the end the genius of the design and my superior drafting skills--hastily brushed off after years of dormancy--won him over.
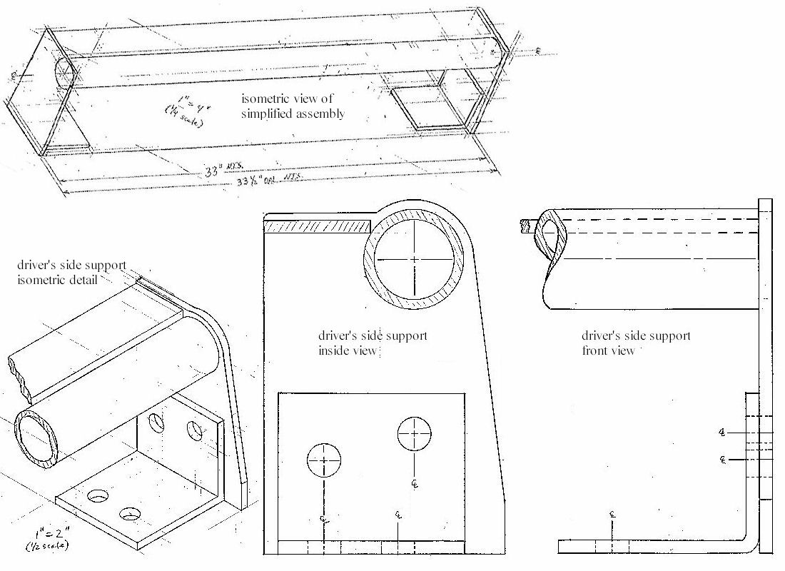
Design began on paper with scale drawings of the Cherokee grill and of the light mount itself. The idea was to take Mike's standard grill guard and remove both the wrap-around light guards and the top horizontal tube, leaving only shortened vertical members and the bottom support tube. Another design mandate was to widen the whole assembly in order to increase access to the top-mounted tow hooks and also to leave enough room on the light bar for four of these monster Hellas. Additionally, the light mounting space would be increased (from the standard two light-mounting tabs on the back of the lower tube) to a full-length bar so that mounting holes could be placed at-will.
At Mike's suggestion, I fabricated the light mount from cardboard and found the preliminary design lacking in a few ways. The problems were all related to the size of the Hellas. The mounting bar needed to be moved forward to make more room for the deep profile of the lights. Also, the lights have a wide and shallow mounting foot, so I widened the mounting bar from 1 1/2" to 2" and raised the bar until it was almost level with the top of the pipe (compare preliminary and final designs for clarification). If the mounting bar was any lower, the pipe would interfere with the application and removal of the light covers.
My original design would probably be fine for smaller sized lights. For me, the mounting bar was too low (in relation to the pipe) and too close to the grill for the Hella 4000 lights.
The following images were borrowed for local, fast-loading reference purposes. Images #1 (gray) and #2 (yellow) are from Custom 4x4 Fabrication. Images #3, #4 (Jason's Big Red) and #5 (Greg's white Backcountry XJ) are from Jeepin.com.
The following detail images of the C4x4F's standard grill guard were provided by Jason at Jeepin.com.